Untermaßfeld - vermietete Eigentumswohnung mit Terrasse & Kfz-Stellplatz +++verkauft+++
Objektart: Eigentumswohnung mit 1 Zimmer, offener Küche & Bad Adresse: 98617 Untermaßfeld
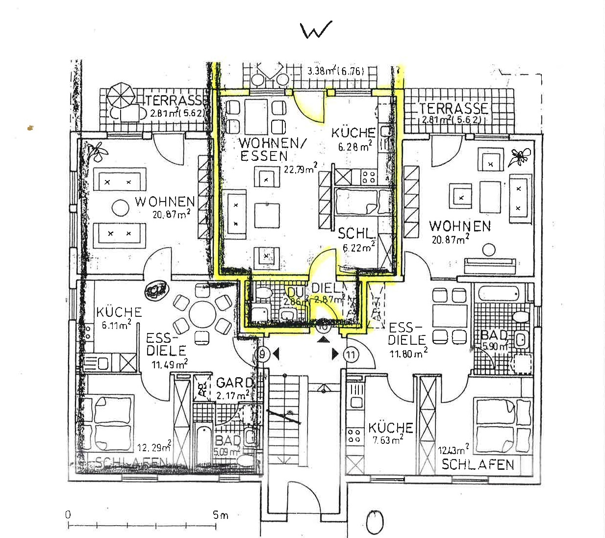
Etage: Erdgeschoß
Baujahr: 1995
Objektnummer: ETW-010
Zimmer: 1,5
Wohnfläche: 44,4 m²
Grundstücksgröße gesamt: 2.247 m²
Miteigentumsanteil: 31,30/1.000
Mieteinnahmen: 3.900,-€/a
Rücklage zum 31.12.2024: 930,-€
Heizung: Gaszentralheizung
Abstellraum: Keller, gemeinschaftlicher Trockenraum
Kfz-Stellplatz: 1 Kfz-Stellplatz
Besonderheiten: Terrasse auf der Westseite
Angaben zum Energieausweis:
Energieausweistyp: Verbrauchsausweis
Gebäudetyp: Mehrfamilienhaus
Baujahr laut Energieausweis: 1995
Baujahr Wärmeerzeuger: 1995
Wesentliche Energieträger: Erdgas
Endenergieverbrauch: 78,11 kWh/(m²·a) - Warmwasser enthalten
Energieeffizienzklasse: C
Gültigkeit: 29.04.2017 bis 29.04.2027
Maklerprovision: 3,57 % vom Kaufpreis, inkl. MwSt.,
bei Abschluss eines Kaufvertrages zu zahlen
Zum Objekt:
Die ruhig und sonnig gelegene Wohnung verfügt über einen modernen Grundriss mit einem hellen Wohnzimmer mit offener Küche und einem kleinen separaten Schlafbereich. Besonders interessant ist die gemütliche Terrasse und der kleine Gartenbereich auf der Westseite des Wohnzimmers. Ein Kfz-Stellplatz sowie ein Abstellraum im Keller sind vorhanden.
Zur Ausstattung:
- wohnfreundlicher Grundriss
- Terrasse auf der Westseite
- Bad mit Dusche
- komplett Außenrollläden
- Zentralheizung 2023 erneuert
- Abstellraum im Keller & gemeinschaftlicher Trockenraum
- gemeinschaftlicher überdachter Fahrradstellplatz
- Kfz-Stellplatz direkt an der Wohnung
Zur Lage:
Die Wohnung befindet sich in ruhiger und sonniger Lage am Rand der Gemeinde Untermaßfeld. Besonders interessant ist die gute Verkehrsanbindung zur 3 km entfernten Kreisstadt Meiningen, die sowohl mit dem öffentlichen Nahverkehr, dem Auto oder dem Fahrrad über den Werratal-Radweg in nur wenigen Minuten bequem zu erreichen ist. Ein kleiner Bahnhof der Regionalbahn befindet sich in ca. 500 m Entfernung. Interessant sind die zahlreichen Wanderwege und Radwege rund um den Ort.
















