Meiningen - moderne Dreiraumwohnung mit zwei Balkonen +++vermietet+++
Objektart: Mietwohnung
Adresse: 98617 Meiningen, OT Dreißigacker
Objektnummer: MW-030
Etage: 1. Obergeschoß
Mietbeginn ab: ab 01.12.2025
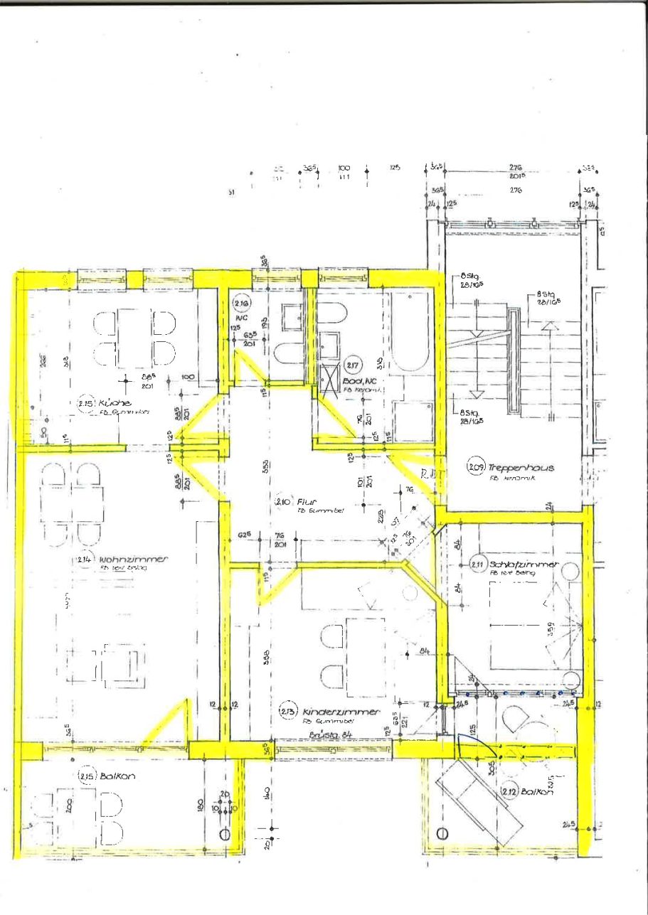
Zimmer: 3
Wohnfläche: 95,5 m²
Miete: ---
Nebenkostenvorauszahlung: ---
Heizkosten: in NK-Vorauszahlung enthalten
Heizung: Gaszentralheizung
Kaution: ---
Abstellraum: 1
Kfz-Stellplatz: Anmietung einer Garage möglich
Besonderheiten: zwei Balkone
Angaben zum Energieausweis:
Energieausweistyp: Verbrauchsausweis
Gebäudetyp: Mehrfamilienhaus
Baujahr laut Energieausweis: 1995
Wesentliche Energieträger: Erdgas
Endenergieverbrauch: 111.3 kWh/(m²·a)
Warmwasser enthalten
Energieeffizienzklasse: D
Gültigkeit: 14.06.2019 bis 13.06.2029
Zum Objekt:
Die Wohnung befindet sich im ersten Obergeschoss eines 1995 errichteten Mehrfamilienhauses mit insgesamt sieben Wohnungen. Sie verfügt über eine moderne Raumaufteilung mit großen und hellen Zimmern. Besonders interessant sind die beiden Balkone auf der Südseite. Bei Interesse kann eine am Haus befindliche Garage für monatlich 40,-€ angemietet werden.
Zur Ausstattung:
- ruhig gelegene Wohnung mit Südausrichtung
- zwei Balkone
- hochwertige Ausstattung
- großes Bad mit Wanne und Dusche sowie sep. Gäste-WC
- Außenrollläden komplett
- Abstellraum im Keller
















